Чтение онлайн

на главную - закладки

Жанры

Домашний архитектор. Подготовка к ремонту и строительству на компьютере
Шрифт:

Рис. 1.8. Трехмерное представление проекта с включенным (слева) и отключенным (справа) отображением ландшафта

Совет

Отключение ландшафта позволит сделать видимыми подвальные помещения или этажи построенного здания. При включенном отображении ландшафта их не видно.

• Штриховку стен вкл./выкл.

предоставляет возможность показать или скрыть штриховку стен на плане в режиме конструирования.

• Показать внутреннюю обстановку

– по умолчанию всегда нажата. Ее отключение убирает с плана все объекты интерьера и экстерьера, оставляя только здание (стены, окна, лестницы и т. п.). Действие данной команды распространяется на режим дизайна, позволяя исключать из расчетов сцены трехмерные модели элементов интерьера и экстерьера.

• Поверхность крыш вкл./выкл.

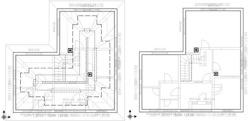
– управляет отображением контуров крыши на плане здания. Если кнопка нажата, то контуры скатов и коньков крыши обрисовываются на плане пунктиром, в противном случае созданная крыша не отображается (рис. 1.9). Отключение отображения поверхности крыши улучшает представление чертежа здания, облегчая редактирование или добавление в план объектов.

Рис. 1.9. Здание с включенным (слева) и отключенным (справа) отображением крыши

Данная функция, как и предыдущая, распространяется на режим дизайна.

• Деревянная конструкция вкл./выкл.

– показывает или скрывает деревянные конструкции в здании, если такие используются в проекте.

• Надписи вкл./выкл.

отвечает за отображение текстовых подписей на чертеже здания.

• Размеры вкл./выкл.

– отображение размеров. Размеры могут создаваться автоматически (например, при построении стены или при фиксации объекта в плане) или выборочно проставляться вручную с помощью специальных команд. В режиме дизайна эта кнопка неактивна, а размеры трехмерных элементов не отображаются.

• Предотвращение конфликтов

– во включенном состоянии кнопка обеспечивает контроль взаимных соударений объектов или соударений между объектом и стеной при добавлении новых объектов и перемещении или редактировании существующих.

• Разрезы показать/скрыть

– предназначена для демонстрации сечений здания. Перед включением отображения разрезов их необходимо создать с помощью команды Определить разрез. Когда кнопка Разрезы показать/скрыть нажата, указанное сечение (их может быть несколько) отображается на плане в небольшой прямоугольной области, ограниченной тонкой красной линией

с красными маркерами по углам (рис. 1.10). С помощью кнопки мыши эту область можно перетаскивать и размещать в любом месте текущего графического листа. Если кнопка Разрезы показать/скрыть не нажата, прямоугольная область с изображением сечения исчезнет, что не означает, что пропало само сечение.

Рис. 1.10. Разрез и его отображение на плане

Размеры данной прямоугольной области также можно изменять. Для этого подведите указатель к одному из маркеров в углах габаритного прямоугольника разреза и, нажав кнопку мыши, перетащите его.

Следующий элемент управления горизонтальной панели инструментов – это раскрывающийся список этажей активного здания на плане. Выбранный в списке элемент отвечает активному этажу в здании.

Примечание

Элементы активного этажа (планировка, интерьер, надписи) отображаются черным цветом (выделены), а элементы неактивных этажей– серым.

В крайней правой части горизонтальной панели инструментов находятся две кнопки – 3D-окно просмотра

и Помощь

Первая команда запускает немодальное окно, в котором отображается трехмерная модель здания на текущем этапе выполнения. Это окно перемещается в пределах главного окна программы и не мешает работе с планом, оставаясь поверх других окон. Изображение в этом окне можно вращать, приближать или отдалять, но нельзя масштабировать. Данное окно служит только для лучшего визуального представления изменений в плане при его разработке или редактировании. Вторая кнопка предназначена для вызова справочной системы программы ArCon. Вы можете воспользоваться ей, если знаете немецкий язык.

При переходе в режим дизайна набор элементов управления горизонтальной панели инструментов не изменяется, однако отдельные кнопки становятся недоступными (Вспомогательные линии вкл./выкл., Штриховку стен вкл./выкл., Надписи вкл./выкл., Размеры вкл./выкл., Разрезы показать/скрыть и пр.). В режиме дизайна появляется еще одна горизонтальная панель – панель управления представлением трехмерного изображения (рис. 1.11). Подробно о содержащихся на ней элементах управления будет рассказано далее при описании работы в режиме дизайна.

Рис. 1.11. Панель управления представлением трехмерного изображения

Большинство команд, управляющих отображением плана и его элементов, дублируются командами меню Показ. В этом меню есть и другие команды, которые будут рассмотрены позже.

Перейдем к изучению команд, представленных на вертикальной панели инструментов главного окна программы ArCon.

Вертикальная панель инструментов

В отличие от горизонтальной панели, состав вертикальной существенно отличается для режимов проектирования и дизайна. Рассмотрим команды, которые доступны в режиме конструирования. Это именно рассмотрение, а не изучение команд. Узнать подробнее о том, как работать с наиболее часто используемыми функциями ArCon, вы сможете из последующих глав данной книги.

Особенностью вертикальной панели инструментов является ее широкий набор команд, большинство из которых представлено в виде групп кнопок (вариантных кнопок).

Поделиться:
Популярные книги

Печать мастера

Лисина Александра
6. Гибрид
Фантастика:
попаданцы
технофэнтези
аниме
фэнтези
6.00
рейтинг книги
Печать мастера

Сложный пациент

Рам Янка
5. Доктор, помогите...
Любовные романы:
современные любовные романы
5.00
рейтинг книги
Сложный пациент

Рядовой. Назад в СССР. Книга 1

Гаусс Максим
1. Второй шанс
Фантастика:
попаданцы
альтернативная история
5.00
рейтинг книги
Рядовой. Назад в СССР. Книга 1

Развод. Боль предательства

Верди Алиса
4. Измены
Любовные романы:
современные любовные романы
7.50
рейтинг книги
Развод. Боль предательства

На границе империй. Том 3

INDIGO
3. Фортуна дама переменчивая
Фантастика:
космическая фантастика
5.63
рейтинг книги
На границе империй. Том 3

Вперед в прошлое 6

Ратманов Денис
6. Вперед в прошлое
Фантастика:
попаданцы
альтернативная история
5.00
рейтинг книги
Вперед в прошлое 6

Расплата. Отбор для предателя

Лаврова Алиса
2. Отбор для предателя
Фантастика:
фэнтези
5.00
рейтинг книги
Расплата. Отбор для предателя

Наследник хочет в отпуск

Тарс Элиан
5. Десять Принцев Российской Империи
Фантастика:
городское фэнтези
попаданцы
аниме
5.00
рейтинг книги
Наследник хочет в отпуск

Лейтенант империи. Часть вторая

Четвертнов Александр
7. Внутренняя сила
Фантастика:
боевая фантастика
космическая фантастика
5.00
рейтинг книги
Лейтенант империи. Часть вторая

Купеческая дочь замуж не желает

Шах Ольга
Фантастика:
фэнтези
6.89
рейтинг книги
Купеческая дочь замуж не желает

Имя нам Легион. Том 6

Дорничев Дмитрий
6. Меж двух миров
Фантастика:
боевая фантастика
рпг
аниме
5.00
рейтинг книги
Имя нам Легион. Том 6

Бастард Императора. Том 6

Орлов Андрей Юрьевич
6. Бастард Императора
Фантастика:
городское фэнтези
попаданцы
аниме
фэнтези
фантастика: прочее
5.00
рейтинг книги
Бастард Императора. Том 6

Хозяин Теней

Петров Максим Николаевич
1. Безбожник
Фантастика:
попаданцы
аниме
фэнтези
5.00
рейтинг книги
Хозяин Теней

Совершенный 2.0: Объединение. Часть 2

Vector
9. Совершенный
Фантастика:
боевая фантастика
рпг
5.00
рейтинг книги
Совершенный 2.0: Объединение. Часть 2