Чтение онлайн

на главную - закладки

Жанры

Полный справочник пчеловода
Шрифт:

Пчеловодческая стамеска: а – обычная; б – универсальная

Ящик для переноски рамок

• Клеточки (Титова или Витюка) для сохранения зрелых маточников, а также плодных и неплодных маток и подсадки их в семьи пчел.

• Колпачки для подсадки маток в семьи, отводки или нуклеусы.

• Кормушки для подкормки пчел весной и пополнения запасов осенью, а также для дрессировки пчел ароматизированным сиропом. Наиболее удобны верхние потолочные кормушки из дерева или пластмассы.

• Разделительная решетка для изоляции матки в гнезде или вылавливания маток в свалочных роях, а также роях-вторяках, где может быть несколько маток. Решетку прибивают к надставке и в нее высыпают пчел из роевни. Пчелы уходят на рамки в улей, а матки и трутни остаются. Пчеловод отлавливает маток и заключает

их в клеточки. Одну матку он пускает к рою.

• Летковые заградители прибивают осенью к леткам, чтобы мыши не проникли в улей через леток.

• Трутнеловка для отлавливания трутней в летний период в семьях со старыми матками, имеющими много трутней.

Пасечные ножи и щеточки для сметания пчел

Роевня для посадки роя: а – роевня А. М. Бутлерова; б – черпак для огребания роя; в – роесниматель; г – ящик для выявления маток при посадке роя

• Удалитель пчел, который монтируется в доске и служит для удаления пчел из магазинных надставок перед откачкой меда.

• Палатка, обтянутая пленкой, для вынужденного осмотра пчелиных семей при отсутствии медосбора, чтобы избежать нападения на улей других пчел.

Для сколачивания рамок и натягивания вощины необходимо иметь следующий инвентарь:

• Доска-лекало для сколачивания рамок и прикрепления к проволоке искусственной вощины.

• Шаблон из жести с четырьмя отверстиями для прокалывания в боковых планках отверстий и натяжки проволоки.

• Шпора для прикрепления (впаивания) проволоки в вощину.

• Дырокол или шило для прокалывания отверстий в боковых планках гнездных и магазинных рамок.

• Проволока луженая для натягивания в четыре ряда гнездовых рамок и крепления вощины.

Маточные клеточки: а – стандартная; б – И. А. Титова; в клеточка-совочек А. Н. Витюка

Колпачки: а – стандартный; б – с шибером; в – клеточка-колпачок А. Н. Витюка

При откачке меда используют следующий инвентарь:

• Ножи пасечные для срезки восковых крышечек (забруса) с медовых сотов. Они бывают простые стальные, паровые и электрические.

• Медогонка для откачки меда из сотов под действием центробежной силы, имеющая две или четыре кассеты.

• Ситечки для процеживания меда (два).

• Стол или ящик для распечатывания сотов.

• Отстойник для отстаивания и дозревания меда после его откачки. Для этой цели можно использовать липовые кадочки или эмалированные бачки с крышками.

Кормушки для подкормки пчел: а – кормушка-рамка; б – деревянная кормушка ящичного типа; в – кормушки-рамки; г – надрамочные деревянные; д – надрамочная из пластмассы

Кроме того, понадобятся:

Удалители пчел . Изготавливают их двух конструкций: удалителя Портера с двумя пружинными пластинками, между которыми проходит пчела, раздвигая их, и подвесными пластинками под углом в 45°. Пчела проходит, приподнимая обе пластинки размером 5×15 мм.

Разделительные решетки: а – металлическая штампованная; б – проволочная; в – из дерева и проволоки

Доска-лекало для наващивания рамок

Медогонки: а – двухрамочная хордиальная медогонка с ручным приводом; б – четырехрамочная хордиальная медогонка с комбинированным приводом: 1 – бак; 2 – подставка; 3 – тяги; 4 – выдвижные ножки; 5 – ротор; 6 – ведомый шкив; 7 – ведомая коническая шестерня; 8 – вал ротора; 9 – кассеты; 10 – петли кассеты; 11 – рычажный механизм для одновременного поворота всех кассет; 12 – электродвигатель; 13 – ведущий шкив; 14 – рукоятка ручного привода; 15 – ведущая шестерня

Удалители монтируют по 1–4 в горизонтальную диафрагму многокорпусного улья, а удалитель Портера – и в вертикальную диафрагму улья-лежака. Отгороженные пчелы за ночь переходят в отделение с маткой, а освободившиеся соты с медом отбирают для откачивания меда.

Пчел с сотов сметают также щеткой.

Рама с тканью . Изготавливают раму по размеру просвета корпуса улья. К ней крепят ткань. При необходимости удалить пчел ткань увлажняют раствором карболовой кислоты или репелентом и кладут раму на корпус с медовыми сотами. От запаха кислоты и репелентов пчелы опускаются в нижние корпуса, а верхний снимают для откачки меда. При этом немедленно убирают раму с тканью, чтобы соты с медом и пергой не поглощали запах кислоты.

Соты с медом распечатывают пчеловодными копьеобразными ножами и вилкой, ножами

с паровым или электрическим подогревом, виброножом и на специальном станке.

Нож паровой: а – вид ножа сбоку; б – вид сверху; в – парообразователь; 1 – лезвие ножа; 2 – хвостовик ножа; 3 – ручка; 4 – змеевик; 5 – концы резиновых трубок; 6 – фаска; 7 – пробка парообразователя; 8 – трубка (размеры в миллиметрах)

Вибронож . Нож и парообразователь крепятся на специальной станине. Нож приводится в вибрирующее состояние с помощью эксцентрика, насаженного на валик электромотора. Ножи располагают вертикально и горизонтально. Под ножом устанавливают бак, куда попадает восковая печатка. Производительность – до 100 сотов за час.

Станок распечатывающий . Состоит из станины, 2 вибрирующих ножей с паровым подогревом, ящика из нержавеющей стали, куда попадает срезанный забрус, и бака, в который стекает мед с восковой печатки.

Ножи приводятся в рабочее состояние электромотором. Производительность станка высокая – 2 тыс. сотов за час. Используют станок в агрегате с радиальными 32–50-рамочными медогонками.

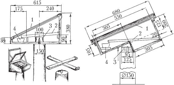
Стол пасечный универсальный . Используют для распечатывания сотов с медом. Изготавливают различные конструкции столов, одна из которых показана на рисунке.

В основу стола входит стеллаж, где размещают соты перед распечатыванием, и решето, сквозь ячейки которого процеживается в емкость мед, а на решетке остается восковая печатка. Более усовершенствованные столы оборудованы транспортерами для подачи рамок.

Вибронож: 1 – электродвигатель; 2 – шпонка; 3 – эксцентрик; 4 – втулка; 5 – тяга; 6 – полотно ножа; 7 – рама; 8 – пружины; 9 – полость ножа, в которой циркулирует пар; 10 – патрубки (вверху для ввода, внизу для вывода пара); 11 – стол; 12 – паровой бак; 13 – паропровод

Стол пасечный универсальный

Медогонки бывают разных конструкций: хордиальные на 2–3–4 рамки, комбинированные на 4– 10 рамок и радиальные на 32–50 рамок. Медогонки на 10–50 рамок выпускают с электродвигателем.

Хордиальные 2–4-рамочные выпускают с поворотными кассетами для рамок, а 3-рамочные – без кассет. Поэтому в последних рамку с сотом с наполовину откачанным медом оборачивают за баком и вновь вставляют в медогонку. У радиальных медогонок мед откачивается одновременно с обеих сторон сота. Соты вращает ротор посредством электродвигателя в течение 8–10 минут. Для регулировки оборотов монтируют на медогонке реле времени.

Емкости для меда . Изготавливают их в заводских условиях в форме цилиндрических бидонов с широким отверстием сверху, из нержавеющей стали или пищевого алюминия. Емкости с широким отверстием удобны для сливания вязкого меда и вынимания закристаллизованного. Емкости используют в основном для транспортирования меда. Хранят мед в бочках из липовой или осиновой древесины, в липовках, в липовых или осиновых ящиках и в указанных емкостях.

• Бачки или бидоны для хранения меда.

Для переработки воскового сырья надо иметь следующий инвентарь:

• Солнечная воскотопка для получения высокосортного воска из светлых сотов, восковых языков и обрезков и т. д.

• Воскопресс для переработки (отжатия воска) темных сотов.

Четырехрамочная хордиальная медогонка (по сравнению с баком кассета увеличена)

Двадцатирамочная радиальная медогонка с электрическим приводом

Электрифицированные спаренные медогонки с автоматическим переключателем УПП–1

• Тазики эмалированные для отстоя воска после отжатия.

• В связи с тем, что часто вблизи пасеки нет источника чистой воды и пчелы вынуждены брать воду из различных грязных мест, необходимо всегда иметь на пасеке специальную поилку, которая состоит из бачка с краном и наклонно поставленной доски с желобком для стока воды.

Слева – типовая солнечная воскотопка, справа – воскотопка конструкции НИИП (в мм): 1 – остекленная рама; 2 – лоток; 3 – бобышка; 4 – корытце

• Многие пчеловоды интересуются ходом медосбора в течение всего сезона и приобретают площадочные весы, на которых ежедневно вечером взвешивают контрольный улей. По разнице в весе за прошедшие сутки можно судить о силе медосбора в данной местности. Контрольный улей ставят под навес для защиты от дождя или закрывают сверху пленкой.

Простейшие приспособления для отжима и отцеживания воска: слева – воскопресс «щипцы», справа – воскопресс «лисица»; 1 – мешок с разваренным восковым сырьем; 2 – бортик из белой жести или деревянных брусков; 3 – станина; 4 – воскосборник

Поделиться:
Популярные книги

Мл. сержант. Назад в СССР. Книга 3

Гаусс Максим
3. Второй шанс
Фантастика:
альтернативная история
6.40
рейтинг книги
Мл. сержант. Назад в СССР. Книга 3

Ликвидатор. Том 3

Бор Жорж
3. Ликвидатор на службе Империи
Фантастика:
городское фэнтези
попаданцы
5.00
рейтинг книги
Ликвидатор. Том 3

Идеальный мир для Лекаря 29

Сапфир Олег
29. Лекарь
Фантастика:
юмористическое фэнтези
аниме
фэнтези
5.00
рейтинг книги
Идеальный мир для Лекаря 29

Убивать чтобы жить 6

Бор Жорж
6. УЧЖ
Фантастика:
боевая фантастика
космическая фантастика
рпг
5.00
рейтинг книги
Убивать чтобы жить 6

Купец из будущего 2

Чайка Дмитрий
2. Третий Рим
Фантастика:
попаданцы
альтернативная история
5.00
рейтинг книги
Купец из будущего 2

Путь Шедара

Кораблев Родион
4. Другая сторона
Фантастика:
боевая фантастика
6.83
рейтинг книги
Путь Шедара

Неправильный диверсант Забабашкин

Арх Максим
4. Неправильный солдат Забабашкин
Фантастика:
боевая фантастика
попаданцы
альтернативная история
5.00
рейтинг книги
Неправильный диверсант Забабашкин

Второй кощей

Билик Дмитрий Александрович
8. Бедовый
Фантастика:
юмористическое фэнтези
городское фэнтези
мистика
5.00
рейтинг книги
Второй кощей

Ваше Сиятельство 9

Моури Эрли
9. Ваше Сиятельство
Фантастика:
боевая фантастика
попаданцы
стимпанк
аниме
фэнтези
5.00
рейтинг книги
Ваше Сиятельство 9

70 Рублей

Кожевников Павел
1. 70 Рублей
Фантастика:
фэнтези
боевая фантастика
попаданцы
постапокалипсис
6.00
рейтинг книги
70 Рублей

Жандарм 4

Семин Никита
4. Жандарм
Фантастика:
попаданцы
альтернативная история
аниме
5.00
рейтинг книги
Жандарм 4

Измена. Мой заклятый дракон

Марлин Юлия
Любовные романы:
любовно-фантастические романы
7.50
рейтинг книги
Измена. Мой заклятый дракон

Боец с планеты Земля

Тимофеев Владимир
1. Потерявшийся
Фантастика:
боевая фантастика
космическая фантастика
5.00
рейтинг книги
Боец с планеты Земля

Страж Тысячемирья

Земляной Андрей Борисович
5. Страж
Фантастика:
боевая фантастика
альтернативная история
фэнтези
5.00
рейтинг книги
Страж Тысячемирья