Чтение онлайн

на главную - закладки

Жанры

Большая Советская Энциклопедия (ОР)
Шрифт:

Достижения современной биологии, главным образом генетики, позволили выявить материальный механизм наследственной связи поколений О., связи между историческим и индивидуальным развитием целостного О. на всех уровнях его организации. См. Гистогенез, Морфогенез, Онтогенез, Органогенез, Филогенез.

Лит.: Шмальгаузен И. И., Организм как целое в индивидуальном и историческом развитии, М. — Л., 1938; Хлопин Н. Г., Общебиологические и экспериментальные основы гистологии, М., 1946; Северцов А. Н., Морфологические закономерности эволюции, Собр. соч., т. 5, М. — Л., 1949; Заварзин А. А., Избр. труды, т. 1—4, М. — Л., 1950—53; Шмальгаузен И. И., Интеграция биологических систем и их саморегуляция, «Бюл. Московского общества испытателей природы. Отдел биологический», 1961, т. 66, в. 2; его же, Регуляция формообразования в индивидуальном развитии, М., 1964; Амлинский И. Е., Некоторые проблемы становления многоклеточности, в сборнике: Структура и формы материи, М., 1967; Рыжков В. Л., Место индивида среди биологических систем, в сборнике: Развитие концепций структурных уровней в биологии, М., 1972; De Beer G. R., Embryos and ancestors, Oxf., 1958; Regulation and control in living systems, ed. Н. Kalmus, N. Y., 1967.

И. Е. Амлинский.

Организмизм

Организми'зм, методологический принцип, одна из форм целостного подхода к изучению объектов органической природы. В основе О. лежит идея о том, что организм обладает специфическими свойствами, обеспечивающими его целостность, и особыми законами организации, которые могут быть выявлены лишь на уровне целого. О. начал активно развиваться с конца 19 в., когда накопленный в биологии и психологии материал пришёл в очевидное противоречие с постулатами как механицизма, сводившего организм к совокупности составляющих его клеток, молекул и атомов, так и неовитализма, пытавшегося возобновить поиски нематериального «жизненного начала». Конкретным выражением идей О. явились концепции органицизма, гештальтпсихологии, холизма, эмерджентной эволюции, органического индетерминизма и др. Некоторые из них носили вполне материалистический характер (особенно органицизм), тогда как другие наряду с позитивными методологическими идеями включали в себя также элементы идеализма и мистики (холизм, теория эмерджентной эволюции и др.). Все эти концепции практически прекратили существование, а исходные идеи О. продолжают играть конструктивную роль в двух направлениях: в плане содержания их разрабатывает теория интегративных уровней организации, а в методологическом они составили один из компонентов системного подхода.

Лит.: Кремянский В. И., Структурные уровни живой материн, М., 1969.

Э. Г. Юдин.

Организованная преступность

Организо'ванная престу'пность, в буржуазных государствах, главным образом в США, форма преступной деятельности, осуществляемая целыми нелегальными организациями, т. н. синдикатами («Мафия», «Коза ностра» и др.). Зарождение О. п. связано с принятием в США в 1920 т. н. «сухого закона», запретившего под страхом уголовного наказания продажу алкогольных напитков. Следствием этого запрета было возникновение «бутлеггерства» — подпольной торговли алкоголем на чёрном рынке по спекулятивным ценам. Колоссальные прибыли стимулировали образование банд бутлеггеров, конкуренция между которыми вылилась в кровавые стычки. Хотя в начале 30-х гг. «сухой закон» был отменен, в большинстве штатов сложились преступные организации уже как разновидности бизнеса. Для О. п. в современных формах характерно участие значительного числа лиц (в США — около 5000), её специализация, связь между штатами в масштабе всей страны. О. п. построена по принципу вертикального подчинения, имеются поставщики, производители, оптовые торговцы, торговцы в розницу, причём члены «синдиката» разных уровней часто не знают друг друга. В системе О. п. сфера получения прибылей и осуществления руководства отделена от сферы непосредственного действия, высшее руководство «синдиката» занимается преимущественно составлением преступных сговоров, подстрекательством или способствованием преступлению. Членство в «синдикате», как правило, связано с участием не в одном, а в двух или более видах преступной деятельности. В «синдикатах» важную роль играют группы профессиональных убийц, используемых для устранения «неугодных» лиц.

Система О. п. включает «рэкет» — вымогательство под страхом расправы, а также поставку нелегальных товаров, предоставление таких запрещенных законом услуг, как организация азартных игр, грабительское ростовщичество, продажа наркотиков, распространение порнографических изданий, содержание притонов и т.д. О. п. проникла и в «законные» сферы бизнеса, в продажные («жёлтые») профсоюзы. Чтобы обеспечить себе безопасность, представители О. п. подкупают и разлагают государственный аппарат. О. п. — одно из ярких свидетельств кризиса капиталистического государства и общества, коррупции буржуазного государственного аппарата. См. также Гангстеризм, Преступность профессиональная.

А. М. Яковлев.

Организованного капитализма теория

Организо'ванного капитали'зма тео'рия, см. Регулируемого капитализма теории.

Организованный набор рабочих

Организо'ванный набо'р рабо'чих в СССР, одна из форм планового межотраслевого и территориального перераспределения трудовых ресурсов, используемая государством в целях обеспечения народного хозяйства рабочей силой и удовлетворения потребности трудоспособного населения в рабочих местах (трудоустройство граждан). О. н. р. возник в начале 30-х гг. в условиях ликвидации безработицы, преодоления аграрного перенаселения и резкого увеличения потребности промышленности, строительства, транспорта в рабочей силе в связи с развёртыванием индустриализации страны. До Великой Отечественной войны 1941—45 ежегодно на предприятия промышленности, строительства, транспорта через организованный набор направлялось в среднем около 3 млн. колхозников, не владевших, как правило, профессиями индустриального труда. Основная часть этой рабочей силы удовлетворяла дополнительная потребность предприятий и строек в период сезонного разворота работ. После непродолжительной работы в промышленности и строительстве многие возвращались в колхозы. Территориальное перераспределение трудовых ресурсов через О.н. р. осуществлялось в то время преимущественно в пределах Европейской части СССР. В послевоенные годы масштабы О. н. р. значительно сократились. Это объясняется прежде всего тем, что в промышленности и строительстве сформировались постоянные кадры рабочих, уменьшились сезонность производства и необходимость в привлечении неквалифицированной рабочей силы. О. н. р. стал формой пополнения персонала предприятий и строек, имеющих важное народно-хозяйственное значение и расположенных главным образом в районах Урала, Сибири, Дальнего Востока. Договоры заключаются преимущественно с городскими жителями, занятыми в отраслях народного хозяйства и имеющими определённую квалификацию.

С 1967 руководство О. н. р. осуществляется государственными комитетами Советов Министров союзных республик по использованию трудовых ресурсов; в областях, краях — соответствующими отделами исполкомов Советов, в автономных республиках — управлениями Советов Министров.

Задания по О. н. р. предусматриваются народно-хозяйственными планами.

Трудоспособное население привлекается к работе на предприятиях и стройках через О. н. р. на строго добровольных началах. При наборе на сезонную работу договор заключается на сезон, на постоянную работу — на срок не менее 1 года, на предприятия Дальнего Востока — на срок не менее 2 лет, для работы на Крайнем Севере — не менее 3 лет. Лицам, заключившим трудовой договор, выдаётся единовременное безвозвратное денежное пособие, суточные за время нахождения в пути и обеспечивается бесплатный проезд и провоз багажа до места работы (в т. ч. и членам семьи). Рабочим, прибывшим на предприятия, предоставляется жилая площадь, возможность пользоваться культурно-просветительскими, лечебными и социально-бытовыми учреждениями. Администрация предприятия обязана организовать обучение рабочих необходимым профессиям, создать условия для повышения квалификации. По истечении срока договора предприятие оплачивает стоимость проезда рабочего к месту его постоянного жительства. При нарушении администрацией условий договора рабочий вправе расторгнуть его.

Л. М. Данилов.

Органическая архитектура

Органи'ческая архитекту'ра, направление в архитектуре 20 в. (особенно распространённое в 30—50-е гг., главным образом в США и Западной Европе), провозгласившее своей задачей создание таких произведений, форма которых вытекала бы из их конкретного назначения и конкретных условий среды, подобно форме естественных организмов. Впервые сформулированные в 1890-е гг. американским архитектором Л. Салливеном под влиянием эволюционной теории биологии, идеи О. а. были развиты в теоретических трудах и творчестве его ученика Ф. Л. Райта. Основу концепции Райта составляла идея непрерывности архитектурного пространства, противопоставленная подчёркнутому выделению его отдельных частей в классицистической архитектуре; эта концепция впервые реализована им в т. н. домах прерий (дом Уиллитса в Хайленд-Парке, штат Иллинойс, 1902; дом Роби в Чикаго, 1909). Раскрытие специфических свойств естественного материала сочеталось у Райта с романтическим отношением к природному ландшафту, неотъемлемой частью которого должны были быть постройки; вместе с тем Райт отвергал значение внешних аналогий с формами органической природы. В полемике с техницистскими крайностями функционализма в середине 30-х гг. О. а. становится одним из распространённых направлений современной архитектуры, противопоставляя функционализму стремление к учёту индивидуальных потребностей и психологии людей Под воздействием идей О. а. сложились региональные архитектурные школы в скандинавских странах и в Финляндии (например, творчество А. Аалто и др.). В США её принципы использовала т. н. калифорнийская школа архитекторов во главе с Р. Нёйтрой. В ряде стран под влиянием О. а. возродился интерес к местным архитектурным традициям и народной архитектуре. В дальнейшем популярность концепции О. а. росла одновременно с повсеместным разочарованием в функционализме. Во 2-й половине 40-х гг. теория О. а. была подхвачена в Италии архитектора Б. Дзеви; в 1945 в Риме создана группа АРАО (Associazione per l’Architettura Organica, Ассоциация органической архитектуры), подчёркивавшая в программе гуманистическая направленность своих устремлений. Однако направление в целом было идейно расплывчатым, его объединяющим началом оставался личный авторитет Райта. Абстрактно-гуманистические идеи уводили О. а. от решения насущных социальных задач, стоящих перед архитектурой. Программным устремлением О. а. к индивидуализму отвергалось использование в строительстве методов стандартизации и индустриализации. Элементы дезурбанистической утопии (см. Дезурбанизм) входили в противоречие с реальными архитектурно-строительными задачами, возникшими после 2-й мировой войны 1939—1945, — с необходимостью массового индустриального строительства. Всё это ограничивало диапазон О. а. главным образом строительством особняков, вилл, загородных отелей. После смерти Райта (1959) О. а. окончательно растворилась среди различных тенденций архитектуры 60-х гг., направленных на расширение диапазона рационалистических методов архитектурного творчества. Некоторые общие принципы формообразования, отдельные приёмы, выработанные О. а., продолжают широко использоваться в архитектуре и художественном конструировании.

Лит.: Райт Ф. Л., Будущее архитектуры, пер. с англ., М., 1960; Wright F. L., An organic architecture. The architecture of democracy, L., 1939; Zevi В., Towards an organic architecture, L., 1950.

А. В. Иконников.

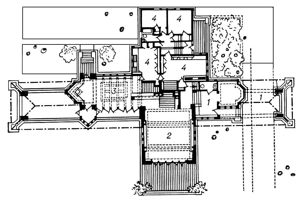
Органическая архитектура. Ф. Л. Райт. Дом Уиллитса в Хайленд-Парке (штат Иллинойс). 1902. План 1-го этажа (1 — подъезд и вестибюль; 2 — гостиная; 3 — столовая; 4 — хозяйственные помещения).

Ф. Л. Райт. Второй дом Джэкобса в Мадисоне (штат Висконсин, США). 1942. Интерьер.

Р. Нёйтра. «Особняк в пустыне» Кауфмана в Палм-Спрингсе (штат Калифорния, США). 1946—47.

Б. Гофф. Дом Форда в Ороре (штат Иллинойс, США). 1950.

Ф. Л. Райт. Дом Уиллитса в Хайленд-Парке (штат Иллинойс, США). 1902.

А. Х. Х. Аалто. Собственный дом в Хельсинки. 1935—36.

И. Гарделла. Столовая фирмы «Оливетти» в Ивреа (Италия). 1959.

Органическая геохимия

Органи'ческая геохи'мия, раздел геохимии, изучающий органическое вещество в различных геосферах Земли. В задачу О. г. входит рассмотрение эволюции органических соединений (углеводородов и их производных) с момента возникновения, изучение дальнейшего изменения их состава и закономерностей распространения. О. г. изучает исходные для органического вещества биохимического соединения (углеводы, белки, лигнин и др.) и продукты их преобразования во внешних геосферах под влиянием бактериальной жизни, температуры, давления и др. геологических факторов (гумус, сапропель, угли ископаемые, горючие сланцы, нефть и др.).

Поделиться:
Популярные книги

Ваше Сиятельство 7

Моури Эрли
7. Ваше Сиятельство
Фантастика:
боевая фантастика
аниме
5.00
рейтинг книги
Ваше Сиятельство 7

Последний Паладин. Том 5

Саваровский Роман
5. Путь Паладина
Фантастика:
фэнтези
попаданцы
аниме
5.00
рейтинг книги
Последний Паладин. Том 5

Студиозус

Шмаков Алексей Семенович
3. Светлая Тьма
Фантастика:
юмористическое фэнтези
городское фэнтези
аниме
5.00
рейтинг книги
Студиозус

Калибр Личности 1

Голд Джон
1. Калибр Личности
Фантастика:
попаданцы
альтернативная история
аниме
5.00
рейтинг книги
Калибр Личности 1

Бастард Императора. Том 7

Орлов Андрей Юрьевич
7. Бастард Императора
Фантастика:
городское фэнтези
попаданцы
аниме
фэнтези
5.00
рейтинг книги
Бастард Императора. Том 7

Ваше Сиятельство

Моури Эрли
1. Ваше Сиятельство
Фантастика:
фэнтези
попаданцы
5.00
рейтинг книги
Ваше Сиятельство

Путешественник по Изнанке

Билик Дмитрий Александрович
4. Бедовый
Фантастика:
юмористическое фэнтези
городское фэнтези
попаданцы
мистика
5.00
рейтинг книги
Путешественник по Изнанке

Песец всегда прав

Видум Инди
6. Под знаком Песца
Фантастика:
альтернативная история
аниме
5.00
рейтинг книги
Песец всегда прав

Мастер 10

Чащин Валерий
10. Мастер
Фантастика:
боевая фантастика
попаданцы
аниме
5.00
рейтинг книги
Мастер 10

Газлайтер. Том 2

Володин Григорий
2. История Телепата
Фантастика:
попаданцы
альтернативная история
аниме
5.00
рейтинг книги
Газлайтер. Том 2

Как я строил магическую империю 6

Зубов Константин
6. Как я строил магическую империю
Фантастика:
попаданцы
аниме
фантастика: прочее
фэнтези
5.00
рейтинг книги
Как я строил магическую империю 6

Стрелок

Астахов Евгений Евгеньевич
5. Сопряжение
Фантастика:
боевая фантастика
постапокалипсис
рпг
5.00
рейтинг книги
Стрелок

Мы – Гордые часть 8

Машуков Тимур
8. Стальные яйца
Фантастика:
попаданцы
аниме
фэнтези
5.00
рейтинг книги
Мы – Гордые часть 8

Я еще князь. Книга XX

Дрейк Сириус
20. Дорогой барон!
Фантастика:
юмористическое фэнтези
попаданцы
аниме
5.00
рейтинг книги
Я еще князь. Книга XX